Buiten de Veste fase 4a Steenbergen

Vooraankondiging 5 nieuwbouwwoningen Buiten de Veste fase 4a aan de Terre te Steenbergen

In goede samenwerking met de gemeente Steenbergen zijn we gestart met de voorbereidingen voor de (voor)verkoop van vijf nieuwbouwwoningen aan de Terre, in de uitbreidingswijk Buiten de Veste in Steenbergen.

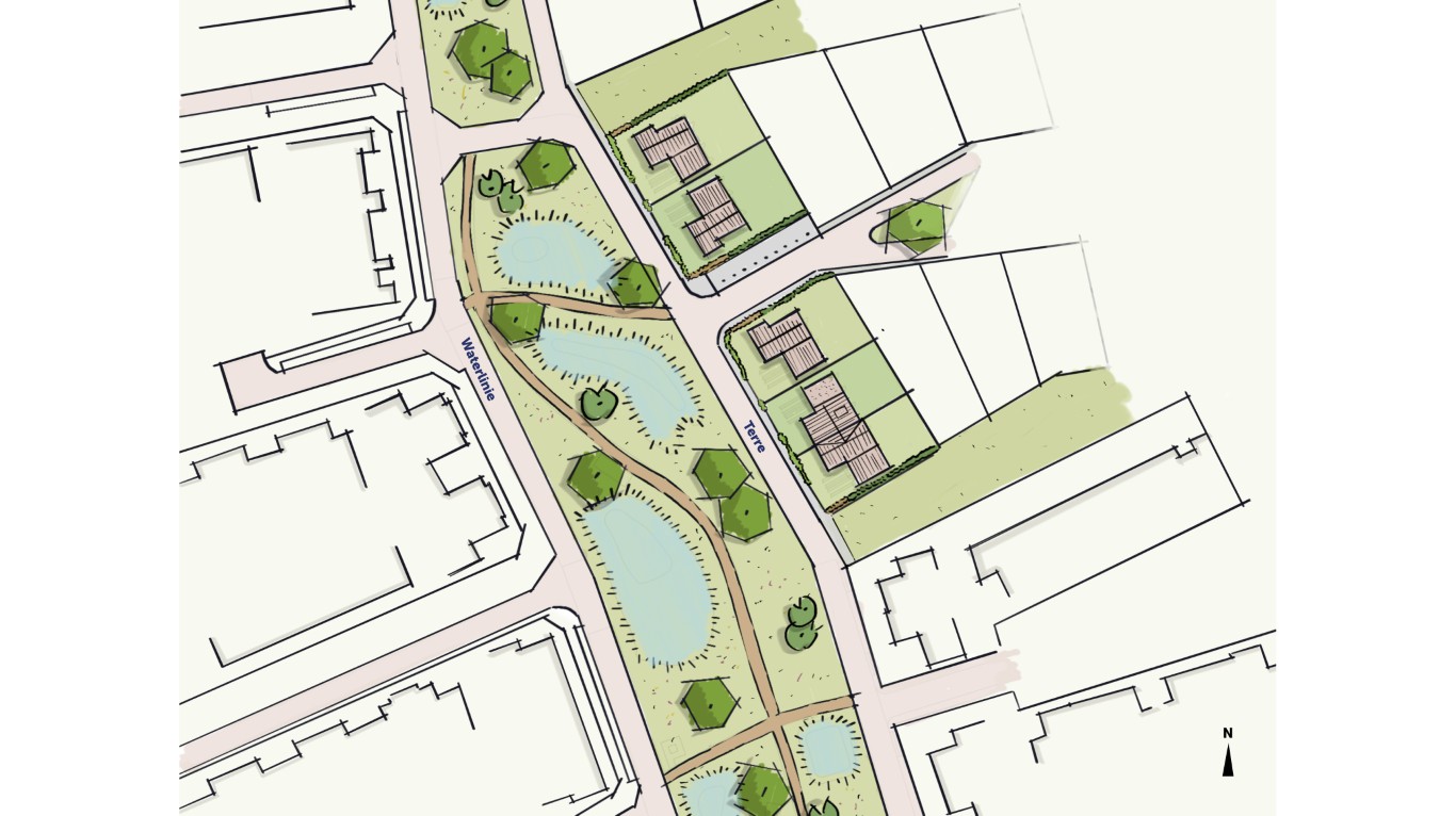
De entree in Buiten de Veste

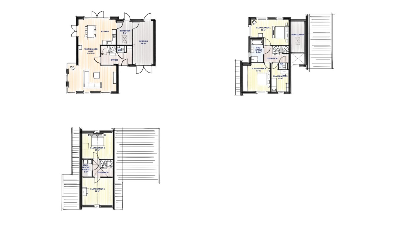
Buiten de Veste is een landelijke gelegen woonwijk aan de noordzijde van Steenbergen. Hier woon je in een ruim opgezette omgeving met veel openbaar groen en voorzieningen dichtbij. De 5 woningen aan de Terre vormen de beeldbepalende entree van het woonhofje Citadel in Buiten de Veste. Deze entree bestaat straks uit:

  • 3 Vrijstaande woningen:
    Woonoppervlakte ca. 200 m2, percelen vanaf ca. 464 m2
  • 2 Halfvrijstaande woningen:
    Woonoppervlakte vanaf ca. 174 m2, perceel ca. 365 m2

Zwaluwe Ontwikkeling ontwikkelt deze woningen met oog voor kwaliteit, ruimte en wooncomfort. Een prachtige kans voor wie op zoek is naar duurzaam en toekomstbestendig wonen in Steenbergen. De getoonde impressies, gemaakt door Quadrant Architecten, geven een eerste indruk van de sfeer en uitstraling van de toekomstige woningen weer.

Maak uw interesse kenbaar

De voorbereidingen zijn nog in volle gang. Bent u geïnteresseerd? Stuur makelaar Content+ Pieter Hommel een e-mail via info@contentplus.nl. Zij noteren graag uw gegevens zodat zij u in een latere fase uitgebreid kunnen informeren over de verdere details, zoals plattegronden, prijzen en de start van de verkoop.

In het kort

Status
In ontwikkeling
Plaats
Steenbergen

Foto's